九艺装饰(三星装饰)

广州
切换城市
自营公司
  • 广州市
  • 肇庆市
  • 惠州市
  • 汕头市
  • 湛江市
  • 赣州市
  • 泉州市
  • 漳州市
  • 南安市
  • 福州市
  • 镇江市
  • 威海市
  • 六盘水
  • 东莞市
  • 海口市
装修报价咨询热线: 177-8888-9250
您的当前位置: 首页 › 装修案例
藏珑府-312㎡现代简约风,包豪斯构建感拉满,时尚又优雅
藏珑府-312㎡现代简约风,包豪斯构建感拉满,时尚又优雅
本方案立足于建筑类的“包豪斯”构建特色,进一步强调结构和形式的完整,更追求材料、技术、空间的表现深度与精确。用简洁的手法进行室内创造。这样,才能在简明轻快的现代生活环境中彰显出时尚个性,品味出优雅的生活。
  • 装修公司
    九艺装饰
  • 装修楼盘
    藏珑府
  • 装修风格
    现代
  • 户型结构
    别墅
  • 装修面积
    312平方
  • 设计师
    唐生春
0
  • 全部
  • 户型图
  • 玄关
  • 客厅
  • 餐厅
  • 厨房
  • 主卧
  • 次卧
  • 儿童房
  • 书房
  • 衣帽间
  • 卫生间
  • 阳台
  • 其他
  • 设计说明
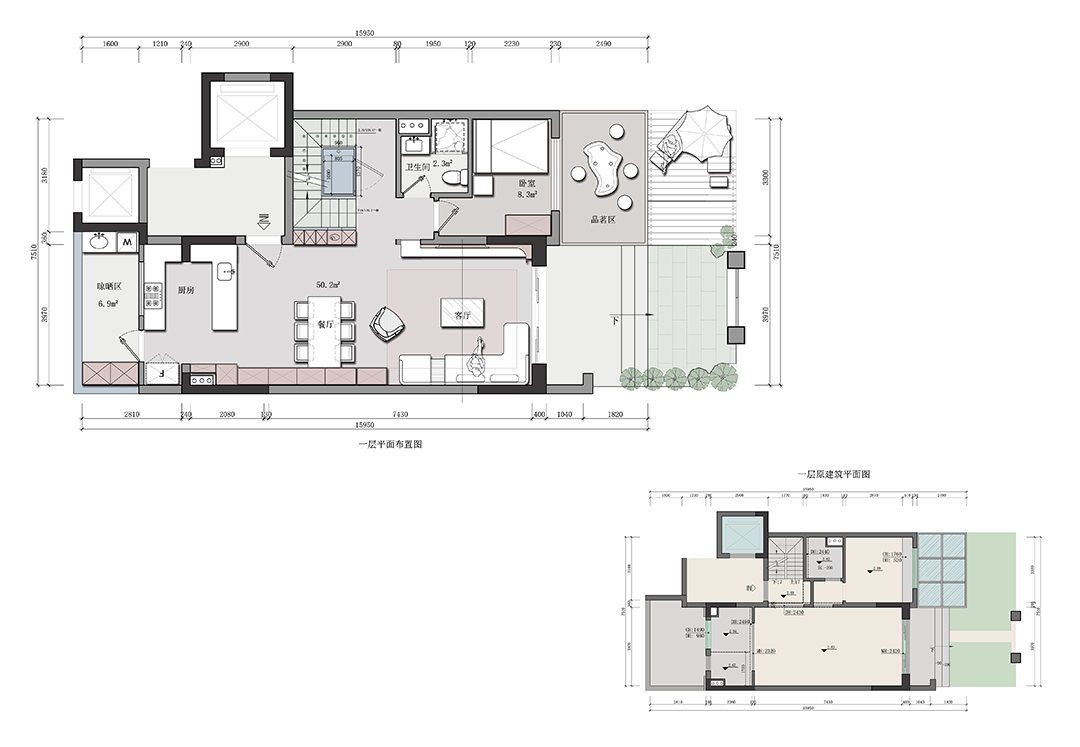
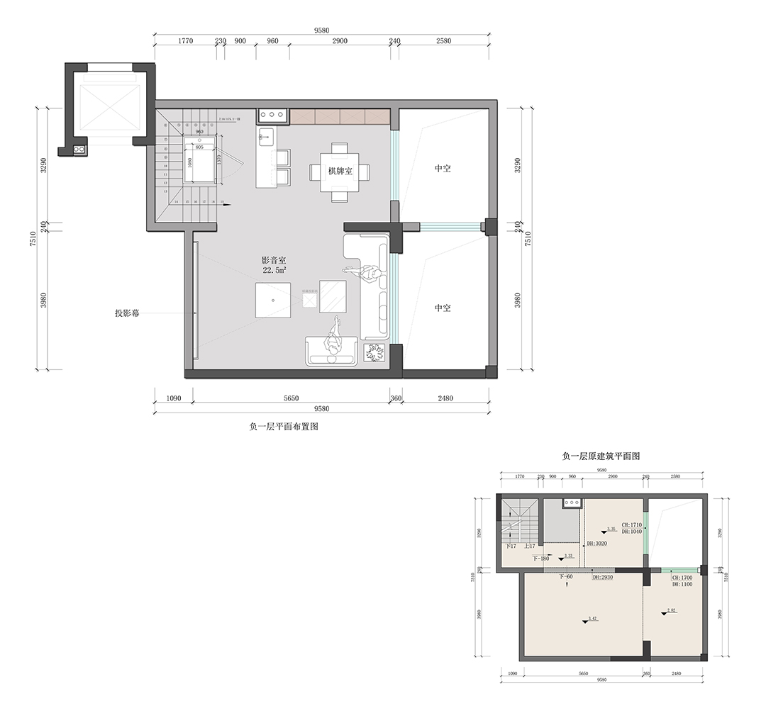
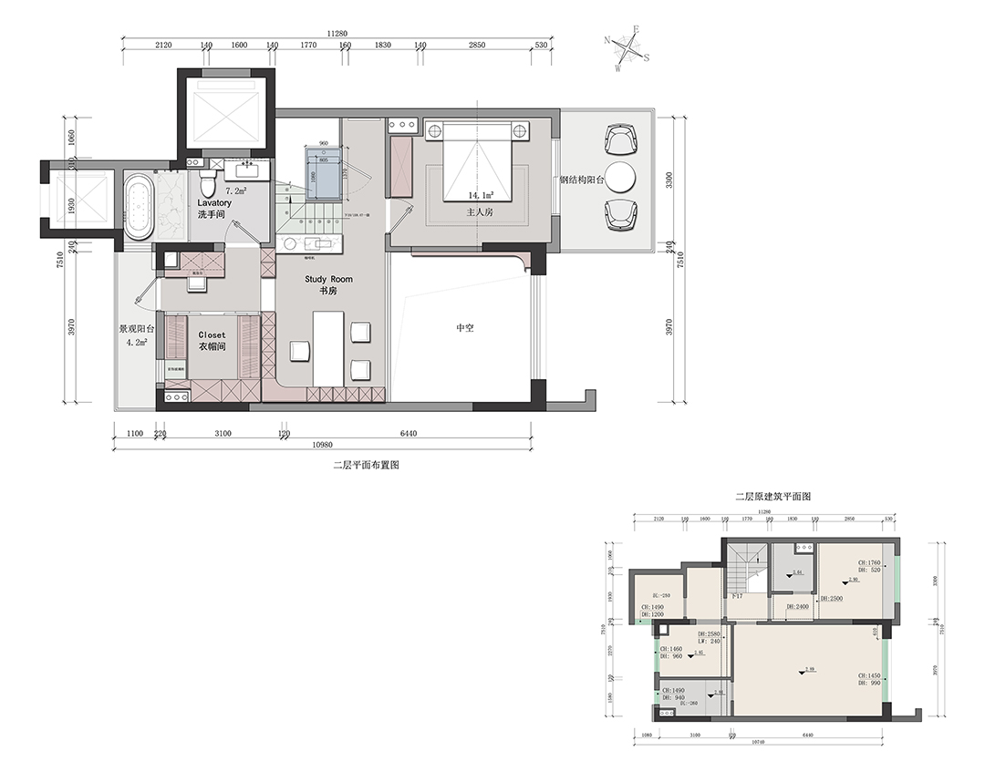
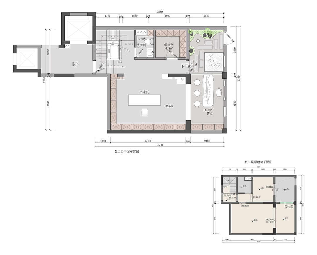
  • 户型图JIUYIDES
    平面户型图
  • 平面户型图
  • 平面户型图
  • 平面户型图
    • 客厅JIUYIDES
      客厅
    • 客厅
    • 客厅
    • 客厅
    • 客厅
    • 客厅
    • 餐厅JIUYIDES
      餐厅
    • 餐厅
    • 餐厅
    • 厨房JIUYIDES
      厨房
    • 厨房
    • 主卧JIUYIDES
      主卧
    • 主卧
    • 主卧
        • 书房JIUYIDES
          书房
        • 书房
        • 衣帽间JIUYIDES
          衣帽间
        • 衣帽间
        • 衣帽间
        • 卫生间JIUYIDES
          卫生间
        • 卫生间
          • 其他JIUYIDES
            棋牌室

            棋牌室

          • 影音室

            影音室

          • 茶室

            茶室

          • 茶室

            茶室

          • 茶室

            茶室

          • 茶室

            茶室

          • 花园

            花园

          • 花园

            花园

          在区别于工艺设计狭义的绘画与雕塑中、使用或汲取装饰艺术的形式特点进行创作的作品,其强烈的特征是其欣赏性更强,并呈图案化趋向,色彩上多重视平面空间的对比关系,与强调三维空间的透视、光影的性质相左。

          本方案立足于建筑类的“包豪斯”构建特色,进一步强调结构和形式的完整,更追求材料、技术、空间的表现深度与精确。用简洁的手法进行室内创造。这样,才能在简明轻快的现代生活环境中彰显出时尚个性,品味出优雅的生活。

          本案设计师简介
          唐生春
          设计研究院 院长
          从业年限:20 年 | 作品案例:6套
          擅长风格:现代、北欧、欧式、新中式、轻奢
          预约TA
          我家装修需要多少钱?10秒估算一下
          装修估算
          装修计算器已经有 16508 业主获取了装修预算
          • 您的称呼:
          • 手机号码:
          • 所在城市:
          • 房屋面积:
          装修预算报价为:184657
          • 材料费:18897
          • 人工费:24514
          • 设计费:4988 元
          • 管理费:8504 元
          * 报价价格仅供参考,实际装修价格以人工报价为准
          九艺简介
          装修服务热线
              177-8888-9250
          地址:广州市天河区珠江新城花城大
          道2号名门大厦首层
          预约设计
          扫一扫,微信沟通
          扫一扫,微信沟通
          Copyright@2021-2025 www.jiuyidec.cn All Rights Reserved 广东九艺装饰设计工程有限公司 版权所有
          《中华人民共和国电信与信息服务业务经营许可证》 粤ICP备14064197号-1
          X
          我要预约
          装修顾问将在预约后24小时内与您联系
          • 您的姓名
          • 您的手机号
          • 房屋的面积
          * 为了您的利益和我们的口碑,我们将严格保密您的个人隐私
          X
          设计方案
          定制您的专属设计方案